Casa indipendente in vendita

Giaveno, Borgata Selvaggio Rio
€ 199.000
5 locali 5 locali
249 Mq 249 Mq
3 bagni 3 bagni

Casa indipendente in vendita

Giaveno, Borgata Selvaggio Rio

Descrizione annuncio

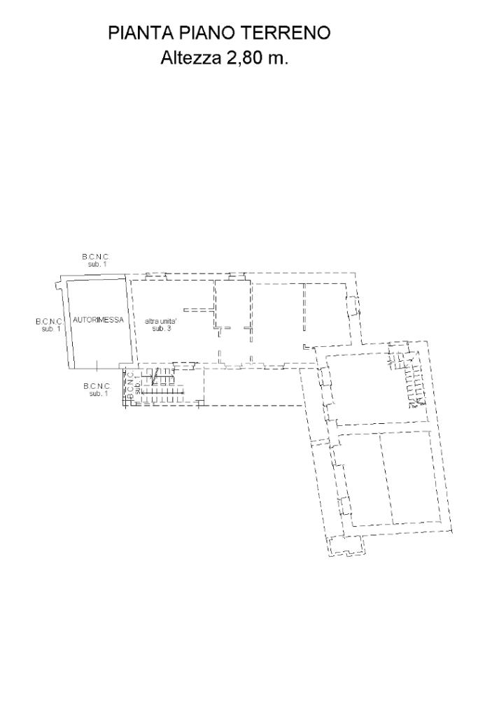
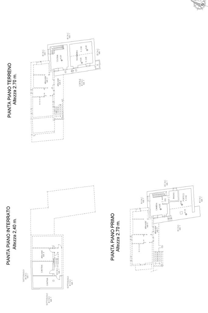
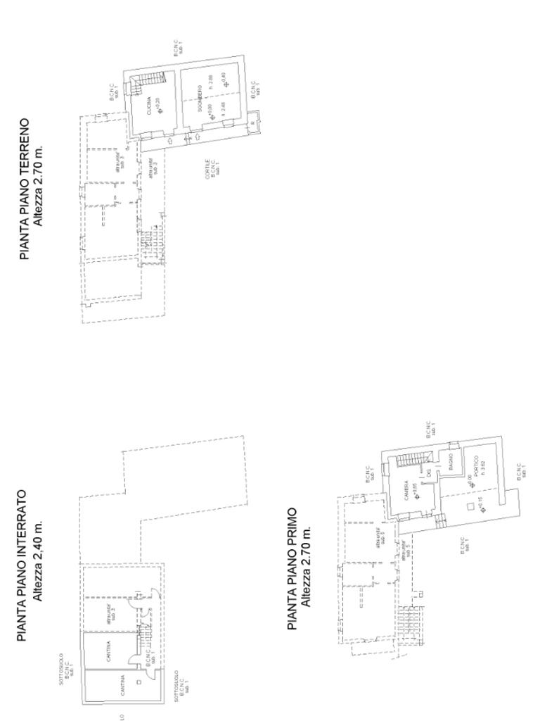
GIAVENO: Nella zona del selvaggio, a poco più di 5 minuti di automobile dal centro del paese, casa indipendente con cortile, giardino privato, autorimessa e ampio magazzino.

L’immobile, il quale si presenta in ottime condizioni, è accessibile tramite il cancello carraio privato ed è composto esternamente dal cortile dove possibile ricavare più posti auto ed il giardino privato di circa 300mq. Ad oggi l’edificio è composto da tre unità abitative distinte, facilmente unibili per ricavarne altre di dimensioni più generose. Il primo appartamento è situato al piano terra e si compone dall’ingresso, la cucina, il salotto, la camera da letto, ed il bagno; Il secondo appartamento è composto dall’ingresso in soggiorno con angolo cottura, la scala interna ed al piano superiore una camera, un bagno ed un ampio terrazzo di circa 30mq; Il terzo ed ultimo alloggio è composto dall’ingresso, il soggiorno, la cucina, il bagno ed una camera da letto. L’immobile è inoltre dotato di un ampio magazzino, un autorimessa e quattro cantine.

Una delle tre unità abitative è attualmente locata con regolare contratto di locazione con scadenza 30/01/2030 ad €5100,00 annui pagati in ordinarie rate mensili; Con il subentro del nuovo contratto, per il nuovo proprietario è garantita una rendita utile per compensare un eventuale rata di mutuo.

Mostra tutto

Nelle vicinanze

Trasporto pubblico Trasporto pubblico
Giaveno (v. Coazze-Deposito GTT)
Giaveno (v. Coazze-Deposito GTT)
2,5 Km
Scuole Scuole
Scuole Pubbliche Elementari
1,7 Km
Scuola Primaria e dell'Infanzia "Crolle"
2,4 Km
Istituto Scolastico Internazionale "Maria Ausiliatrice"
2,5 Km
Istituto Istruzione Superiore Blaise Pascal
2,8 Km
Istituto Giacinto Pacchiotti
2,8 Km
Farmacia Farmacia
Farmacia Alloa
1,5 Km
Farmacia
2,7 Km
Farmacia Appendini
2,9 Km
Farmacia S. Antero
2,9 Km
Supermercati Supermercati
Carrefour Express
3,0 Km
Negozi Negozi
Panetteria
1,8 Km
Abbigliamento
1,9 Km
Bramante
2,5 Km
Valmarket
2,6 Km
Bar Bar
Bar da Gas
1,8 Km
La Piazzetta
1,9 Km
Cremeria Gramsci
2,1 Km
V Club
2,1 Km
Bar Il Ritrovo
2,6 Km
Ristoranti Ristoranti
Locanda dell'amicizia
1,8 Km
Pizzeria Ortilla
2,0 Km
Pizzeria al taglio
2,1 Km
Ristorante Piemonte
2,2 Km
Le Pigne
2,7 Km
Mostra tutto

Caratteristiche

Rif.:
61127177
Piano:
Su più livelli di 3
Totale piani:
3
Box:
1
Posti auto:
3
Balconi:
1
Mostra tutto
Prezzo Prezzo
€ 199.000
Rata mutuo Rata mutuo
€ 938 / mese
Spese annue Spese annue
€ 0
Proponi il tuo prezzoProponi il tuo prezzo

Classe Energetica

Questo immobile è esente da classe energetica
Anno di costruzione:
1967
Riscaldamento:
Autonomo
Tipo impianto:
A radiatori
Tipo alimentazione:
Metano

Ti interessa visionare l'immobile?

Fissa un appuntamento  Fissa un appuntamento

Richiedi informazioni

Clicca su Leggi per aprire l'informativa
* Questi campi sono obbligatori

Calcola il tuo mutuo

Semplice e senza impegno
Anticipo

( % )
Mutuo

( % )

pochi semplici passi

inserisci i tuoi dati
Questionario completato
Grazie per aver richiesto un appuntamento senza impegno con un nostro Consulente del Credito e Assicurativo.

Hai inserito correttamente tutti i dati necessari e a breve riceverai una e-mail con un link da convalidare per inviare i tuoi dati.
Affiliato
Studio Giaveno Sas
Via Roma, 54 10094 Giaveno (TO)

Il nostro staff


  • Andrea Domenino
    Responsabile

  • Antonino Spezzano
    Collaboratore
Via Roma, 54 10094 Giaveno (TO)
Zona: Giaveno-Coazze-Valgioie
Mostra su mappa
Orari: Tutti i giorni 9.00-12.30 e 15:00-20.00.Sabato chiusura 19.00. Domenica su app. dalle 10.00-12.00
Affiliato
Studio Giaveno Sas
Via Roma, 54 10094 Giaveno (TO)

2026 Tecnocasa Franchising S.p.A. - P. IVA 08365160152 - Via Monte Bianco 60/A 20089 Rozzano (MI). Ogni agenzia ha un proprio titolare ed è autonoma. Privacy policy | Policy utilizzo | Cookie policy