Villa singola in vendita

Giaveno, Borgata Combacalda - Buffa
€ 125.000
4 locali 4 locali
212 Mq 212 Mq
2 bagni 2 bagni

Villa singola in vendita

Giaveno, Borgata Combacalda - Buffa

Descrizione annuncio

COAZZE: In Via Combacalda, sul confine Giaveno-Coazze ai confini della zona della Buffa, struttura in corso d'opera; Con giardino privato ed autorimessa (Possibilità anche come bifamiliare).

L'immobile è dotato di giardino privato e gode di un ottima esposzione in pieno sud.

Ad oggi viene venduto l'immobile nello stato attuale:
-progettazione completa, approvata e depositata in comune
-oneri comunali e costi costruttuvi già pagati dall'attuale proprietario
-basamento in cemento armato, sottoservizi e terreno.

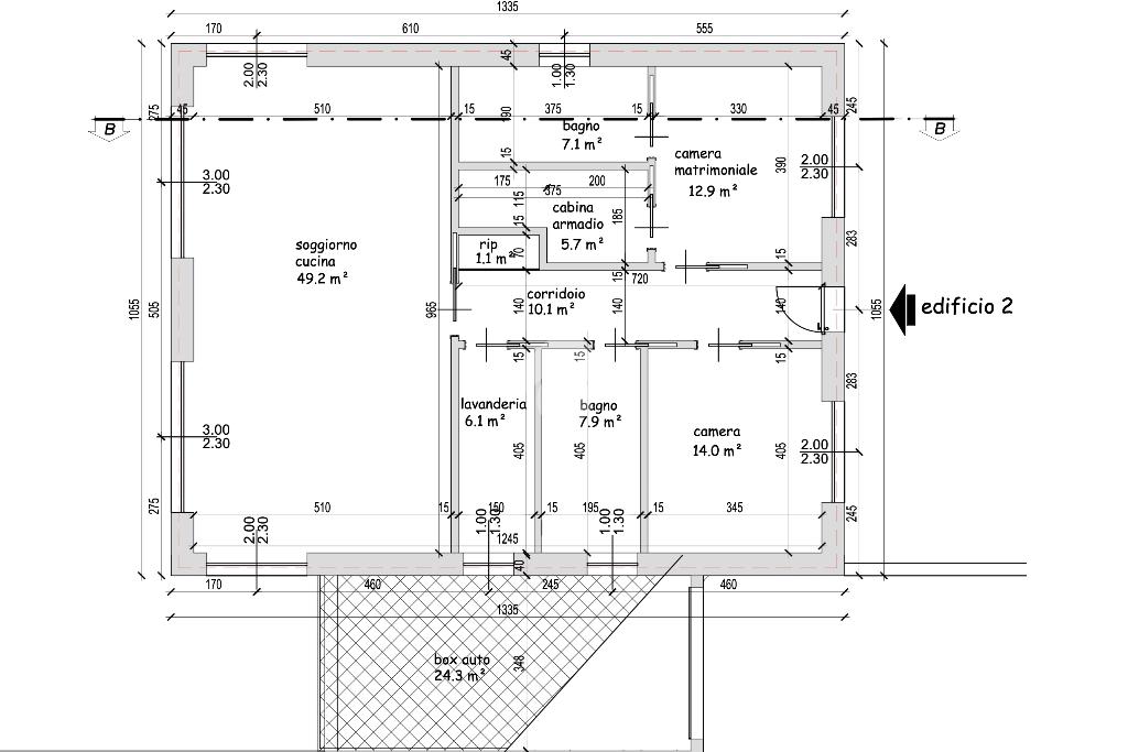
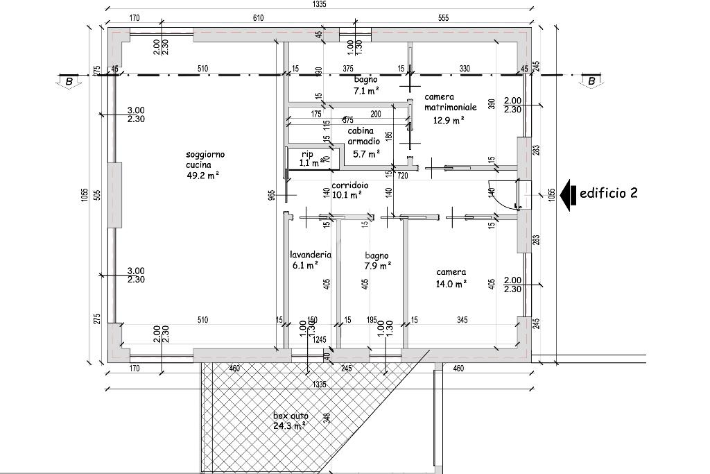
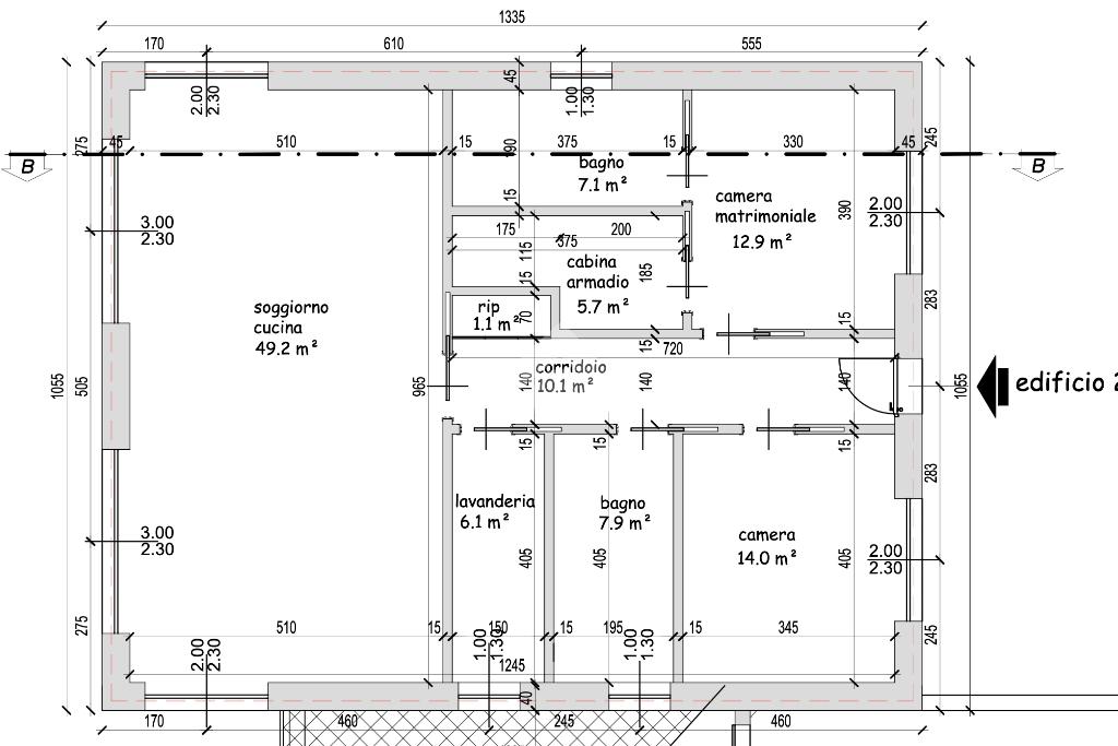
L'immobile in progetto si sviluppa tutto su di un unico livello ed è composto dall'ingresso in disimpegno, l'ampio soggiorno di circa 50 mq con cucina abitabile a vista, il ripostiglio, due camere da letto matrimoniali di cui una con cambina armadio e bagno privato, il bagno ed il bellissimo terrazzo con vista panoramica

L'abitazione inoltre è circondata dal giardino privato ed è dotata di autorimessa privata.

L'immobile è completamente indipendente ad accezione della rampa d'accesso all'autorimessa comune con la villa in costrzuione antestante.

Le specifiche costruttive per il realizzo della struttura progettata prevedono:
-pannelli fotovoltaici
-impianto di climatizzazione
-riscaldamento radiante a arete e pavimento
-impiato con VMC per ricircolo dell'aria
-impianto fotovoltaico
-infissi con triplovetro
ed altre recenti tecnologie utili a garantire immobile dai consumi minimi con classe energetica molto elevata.

Possibilità di acquisto della villa in costruzione antestante, al prezzo di €125.000 per rendere la soluzione bifamiliare.

I rendering fanno riferimento al progetto approvato ed allo studio con strtuttura prefabbricata già concordata con la ditta fornitrice (con la quale è possibile prendere contatto).

Possibilità di appuntamento sul posto e consulenza con tecnici professionisti direttamente in agenzia.

Mostra tutto

Nelle vicinanze

Trasporto pubblico Trasporto pubblico
Giaveno (v. Coazze-Deposito GTT)
Giaveno (v. Coazze-Deposito GTT)
2,2 Km
Giaveno (v.le Regina Elena)
Giaveno (v.le Regina Elena)
2,9 Km
Scuole Scuole
Scuole Pubbliche Elementari
520 m
Scuola Primaria e dell'Infanzia "Crolle"
2,2 Km
Istituto Scolastico Internazionale "Maria Ausiliatrice"
2,3 Km
Istituto Comprensivo Francesco Gonin
2,7 Km
Istituto Istruzione Superiore Blaise Pascal
2,8 Km
Farmacia Farmacia
Farmacia Alloa
1,2 Km
Farmacia Appendini
2,8 Km
Farmacia S. Antero
2,8 Km
Farmacia
2,9 Km
Farmacia Dr. Reviglio
3,0 Km
Supermercati Supermercati
Carrefour Express
2,8 Km
crai
3,0 Km
Negozi Negozi
Panetteria
1,5 Km
Abbigliamento
1,6 Km
Bramante
2,1 Km
Bar Bar
Bar da Gas
1,5 Km
La Piazzetta
1,7 Km
Cremeria Gramsci
1,8 Km
V Club
1,8 Km
Torrefazione Del Palio
2,7 Km
Ristoranti Ristoranti
Locanda dell'amicizia
640 m
Pizzeria Ortilla
1,8 Km
Pizzeria al taglio
1,8 Km
Ristorante Piemonte
1,9 Km
Trattoria il Campanile
2,3 Km
Mostra tutto

Caratteristiche

Rif.:
61184545
Piano:
Su più livelli di 1
Totale piani:
1
Box:
1
Posti auto:
1
Balconi:
1
Mostra tutto
Prezzo Prezzo
€ 125.000
Rata mutuo Rata mutuo
€ 594 / mese
Spese annue Spese annue
€ 0
Proponi il tuo prezzoProponi il tuo prezzo

Classe Energetica

A4
A4
A4
A4
A4
A4
A4
A4
A4
EP globale non rinnovabile:
0.00 kW h/m² anno
EP globale rinnovabile:
0.00 kW h/m² anno
EP invernale del fabbricato:
EP estiva del fabbricato:
Anno di costruzione:
2026
Riscaldamento:
Autonomo
Tipo impianto:
A pavimento
Tipo alimentazione:
Pannelli

Ti interessa visionare l'immobile?

Fissa un appuntamento  Fissa un appuntamento

Richiedi informazioni

Clicca su Leggi per aprire l'informativa
* Questi campi sono obbligatori

Calcola il tuo mutuo

Semplice e senza impegno
Anticipo

( % )
Mutuo

( % )

pochi semplici passi

inserisci i tuoi dati
Questionario completato
Grazie per aver richiesto un appuntamento senza impegno con un nostro Consulente del Credito e Assicurativo.

Hai inserito correttamente tutti i dati necessari e a breve riceverai una e-mail con un link da convalidare per inviare i tuoi dati.
Affiliato
Studio Giaveno Sas
Via Roma, 54 10094 Giaveno (TO)

Il nostro staff


  • Guendalina Pellitteri
    Coordinatrice

  • Andrea Domenino
    Responsabile

  • Valentina Domenino
    Coordinatrice

  • Antonino Spezzano
    Collaboratore
Via Roma, 54 10094 Giaveno (TO)
Zona: Giaveno-Coazze-Valgioie
Mostra su mappa
Orari: Tutti i giorni 9.00-12.30 e 15:00-20.00.Sabato chiusura 19.00. Domenica su app. dalle 10.00-12.00
Affiliato
Studio Giaveno Sas
Via Roma, 54 10094 Giaveno (TO)

2026 Tecnocasa Franchising S.p.A. - P. IVA 08365160152 - Via Monte Bianco 60/A 20089 Rozzano (MI). Ogni agenzia ha un proprio titolare ed è autonoma. Privacy policy | Policy utilizzo | Cookie policy